









Pentru cei ce sunt in cautarea unei case, unde sa gaseasca modernul, confortul si eficienta, avem aceasta optiune !
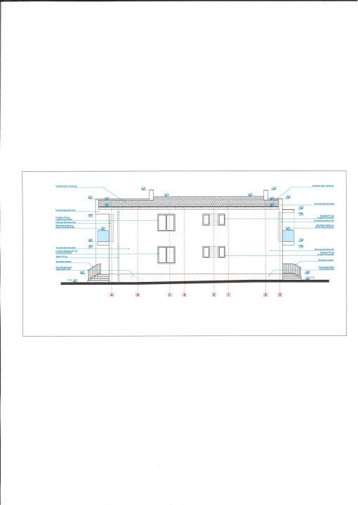
Casa 3 camere de tip Quadruplex cu un regim de inaltime Parter + Etaj, curte libera de 170 mp si suprafata utila de 82,27 mp.
Caracteristici si Compartimentare :
- Parter: living spatios 20.51 mp, bucatarie separata 13.53 mp, baie de serviciu prevazuta cu geam 1.75 mp, hol 3.41 mp
- Etaj: hol 4.55 mp, 2 dormitoare 16.50 mp si 12.92 mp, baie 4.03 mp, balcon 5.07 mp.
Pret solicitat: 172.000 euro TVA inclus \ 0 Comision
Predarea se face in toamna acestui an [ 2025 ].
Interior - La stadiul de Alb Finisat
- peretii vor fi tencuiti si zugraviti cu lavabila alba, instalatii electrice si incalzire in pardoseala pe ambele niveluri cu centrala in condensatie, termostate individuale, contorizare separata pentru utilitatile de apa, gaz, curent iar racordurile functionale la baie si bucatarie.
Exterior - La Cheie
- Izolatie exterioara cu polistiren EPS 80 de 10 cm si tencuiala decorativa alb + gri antracit, tamplarie PVC Salamander, 5 camere, 3 foi de sticla, feronerie Maco, acoperis cu structura completa si izolatie cu vata de 25 cm, rigips antiincendiu, burlane metalice si usa de acces termoizolanta Salamander.
Daca sunteti interesati de anumite tipuri de imobile cum ar fi: apartamente case terenuri spatii comerciale \ industriale \ birouri in diferite zone ale orasului ( fie vanzari sau inchirieri ) si ofertele noastre vi se par interesante; nu ezitati sa ne contactati \ scrieti pe urmatorul nr. de telefon \ whatsapp: 0758 521 077 sau pe site-ul oficial al agentiei www.selectimobiliare.ro ; doar in acest fel puteti vedea toate ofertele noastre din portofoliul agentiei sau pe care vi le putem procura in urma colaborarii pe care o avem cu alti colegi de breasla si dezvoltatori imobiliari.
Departament Marketing si Secretariat pentru vizionari imobiliare: 0758 521 077
Departament Financiar Credite si Asigurari - consultanta gratuita.
Va multumim ca alegeti Select imobiliare Sibiu !